160 Leroy Street
Details
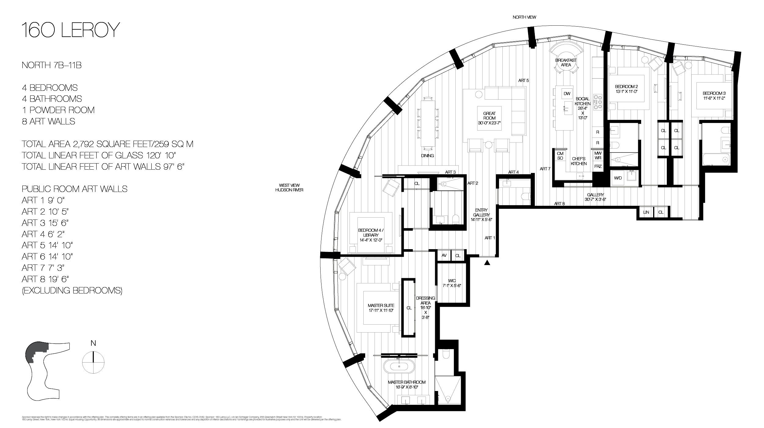
Residence North-10B at 160 Leroy Street is a timeless West Village masterpiece, accentuated by breathtaking sunsets across the expansive waterfront to the west. Extending north and south, with the Statue of Liberty in the distance, the Hudson River views are both enviable and stunning, particularly from the impressive Great Room. Bespoke and striking, the four-bedroom, four-and-a-half bath residence boasts a sprawling and unique open layout ideal for entertaining, with 2,792 square feet and 6 art walls, appointed with the highest quality finishes and top-tier luxury appliances. Rarely is a residence of this caliber available for sale.
Enter through the foyer and into the Great Room, which flows into a custom designed Bulthaup kitchen finished with Scandinavian Larch cabinetry, hand-selected Sivec marble, a suite of integrated appliances by Sub-Zero, Wolf, Gaggenau, and Miele, and a separate enclosed chef’s kitchen with a Sub-Zero freezer and wine refrigerator, and Wolf steam oven. Beyond the kitchen is a dramatic interior hallway leading to two bedrooms with northern exposures and en suite baths, and a separate door to the exterior hallway to maximize privacy.
The primary suite boasts open western views overlooking the Hudson River, a marble-clad en suite bath with a Kaldewei soaking tub, radiant heated floors, double vanity, stall shower, a water closet, and generous closet space. Adjacent to the primary suite is an additional bedroom and en suite bath with pocket doors leading into the Great Room, offering the flexibility to create an alternative use, such as an office, den, or library. Completing the mint condition residence is a powder room finished in Scandinavian Larch wood with a floating marble vanity, a large-capacity washer and dryer, triple-pane curtain walls with UVA/UVB protection, motorized shades, 12" wide plank Scandinavian larch wood floors, and private storage.
Designed by Pritzker award winning architects Herzog & de Meuron, and conceptualized by Ian Schrager, 160 Leroy Street is an iconic waterfront condominium located in the West Village, renowned for its undulating facade and one-of-a-kind residences. Residents enjoy access to a full suite of services and amenities, including a port cochere and courtyard by landscape designer Madison Cox, a 24-hour concierge, doorman, porter, parking garage, and an onsite resident manager. Wellness and leisure facilities include a 70-foot pool and whirlpool spa with floor-to-ceiling glass, a fitness center, yoga and Pilates studio, steam room, sauna, and a private massage room. Residents also enjoy access to a lounge with a catering kitchen and piano for private events, a children’s clubhouse, gourmet take-out and delivery service, bike storage, refrigerated delivery storage, and a laundry room with oversized washers and vented dryers. Shown exclusively by appointment only.
Enter through the foyer and into the Great Room, which flows into a custom designed Bulthaup kitchen finished with Scandinavian Larch cabinetry, hand-selected Sivec marble, a suite of integrated appliances by Sub-Zero, Wolf, Gaggenau, and Miele, and a separate enclosed chef’s kitchen with a Sub-Zero freezer and wine refrigerator, and Wolf steam oven. Beyond the kitchen is a dramatic interior hallway leading to two bedrooms with northern exposures and en suite baths, and a separate door to the exterior hallway to maximize privacy.
The primary suite boasts open western views overlooking the Hudson River, a marble-clad en suite bath with a Kaldewei soaking tub, radiant heated floors, double vanity, stall shower, a water closet, and generous closet space. Adjacent to the primary suite is an additional bedroom and en suite bath with pocket doors leading into the Great Room, offering the flexibility to create an alternative use, such as an office, den, or library. Completing the mint condition residence is a powder room finished in Scandinavian Larch wood with a floating marble vanity, a large-capacity washer and dryer, triple-pane curtain walls with UVA/UVB protection, motorized shades, 12" wide plank Scandinavian larch wood floors, and private storage.
Designed by Pritzker award winning architects Herzog & de Meuron, and conceptualized by Ian Schrager, 160 Leroy Street is an iconic waterfront condominium located in the West Village, renowned for its undulating facade and one-of-a-kind residences. Residents enjoy access to a full suite of services and amenities, including a port cochere and courtyard by landscape designer Madison Cox, a 24-hour concierge, doorman, porter, parking garage, and an onsite resident manager. Wellness and leisure facilities include a 70-foot pool and whirlpool spa with floor-to-ceiling glass, a fitness center, yoga and Pilates studio, steam room, sauna, and a private massage room. Residents also enjoy access to a lounge with a catering kitchen and piano for private events, a children’s clubhouse, gourmet take-out and delivery service, bike storage, refrigerated delivery storage, and a laundry room with oversized washers and vented dryers. Shown exclusively by appointment only.
- Map
- Street View
Contact Agent
-
Adam HellerLicensed Real Estate Broker - President
-
Amanda RosenbergVice President, Licensed Associate Real Estate Broker
-
Michael GavinLicensed Real Estate Salesperson
Reviews
Write Your Own Review
Property Information
-
<
- PRICE
- $12,000,000
- PRICE PER SF
- 4,298
- STATUS
- Contract Signed
- FINANCING ALLOWED
- 90 %
- BEDROOMS
- 4
- BATHROOMS
- 4.5
- ASF | SM
- 2,792SF | 259SM
- OWNERSHIP
- Condo
- BUILDING TYPE
- Mid-Rise
- FLOORS | APTS
- 15
- SERVICE LEVEL
- Concierge
- PET POLICY
- Pets Allowed
Apartment Features
- 11-Foot Ceilings
- Wideplank Floor
- Mortgage Calculator

160 Leroy Street
Recently Viewed









